厨房使用面积不小于4平方米 卫生间不小于3平方米
公租房将出“样板”设计图集

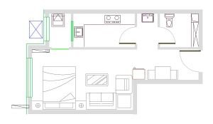
京原路7号公租房40平方米户型图。
最大不超过60平方米的小户型公租房将有更实用的设计。记者昨日获悉,为了保证公租房设计质量,相关部门正在着手制定公租房的设计、装修标准,并将提供多套“样板”设计图给予参考。
去年年底,《北京市保障性住房规划建设设计指导性图集》出炉,以提高小户型的设计水平。而现在,同一班底的人马正在加紧完善公租房的户型设计。
“标准和设计图出炉后,将有望加快公租房的建设速度。”市建筑设计研究院总建筑师刘晓钟说。
公租房户型能“变型”
在设计师的规划中,公租房不仅要在套型内满足住户的基本需求,还尽量要成为“变形金刚”,能与临近的套型打通,组成一套面积更大的住宅。
按照《北京市公共租赁住房建设技术导则》,30平方米左右的单居套型应该具备简单电加热和排烟厨具的条件,40平方米至60平方米的小套型、中套型和大套型的厨房使用面积都要不小于4平方米。
同时,所有公租房的卫生间要不小于3平方米,阳台建筑面积不大于4平方米。
“随着经济的发展,住宅的设计标准就会有变化。我们要在设计阶段就考虑到在未来70年中情况一旦改变,这些小户型是否还会好用。”市规划委相关负责人说。
他表示,公租房设计中将考虑为两套房打通成为一套房留空间。
只要两套房中间没有承重墙,打掉隔断不就可以了吗?设计师说,并非如此。
“我们要能保证打通的户型同样是合理的,不能说两个户型打通以后出现功能、面积上的浪费。”设计师说,如果两套30平方米的单居户型合并后出现两个3平方米的卫生间,就会造成浪费。在设计时要考虑或者将两个户型的卫生间放在一起,或者考虑将其中一间改造成储藏室。
室内加壁橱“占天不占地”
屋内提供简单装修,让人可以拎包入住。相关部门正在制定公租房的装修标准,同时考虑设计出多种装修方案供企业和入住人群选择。
“如果是单身年轻人还好,但如果是已经在北京打拼了几年,有家室的人搬进公租房时,可能会携带不少的家具。”清华大学教授周燕珉说,小户型会面临着租户自带家具和储物空间的冲突。
“有些人的老家具拿进来摆不下,但下一户可能又没家具。公租房的住户在流转,可需求都不一样。”一名开发企业负责人对记者说,不同人群有不同的需求,他们计划在公租房中试水“菜单式”装修,但可能会面临浪费。
周燕珉说,在装修标准中,将会推荐“占天不占地”的壁橱形式。普通高度的大衣柜或冰箱可以塞到壁橱之下。